The throttle device installation instructions - SIKE measurement and control (2)

Plug-in double venturi tube Insert the type double venturi tube
D, other classes

Wedge structure of flow meter V type internal cone throttling device

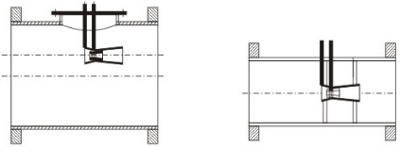
The wing shape wind device structure diagram
Figure 2 main throttle device structure diagram
Due to the limitation of space of this manual, a large number of failed on the throttling device structure and technical parameters, please consult the company or to consult the relevant information.
The practical application of the throttle device structure is far far more than described above, and because of the different process conditions. The throttle device can be considered as a single basic production, so it has very good flexibility. The company in addition to providing the throttle device, according to the above the structure can also be used on the straight pipe, the downstream; Don't match at the inlet and outlet flange of the straight pipe, also can be installed with flange; Straight pipe length can be determined by the user, can also according to the provisions of the company length L = 10 dn, downstream length L = 5 dn delivery; Can also be used by sinopec industry FFO, FFOP FFOPF, FEE, FFEP, FFQ etc. The provisions of the supply. But remind users to pay special attention to: one is the supply type and detail must be written clear in the contract; Second, the user must indicate the pipe and the material of flange type.
The flange standard
This company produces the throttling device and a variety of flow meters, level gauge flange with a standard for our country mechanical industry standard JB/T74-94 ~ 94-94 (i.e., the original JB74-59-90-59) or China national standard GB9112-88 ~ 9123-88. According to user requirements can also be HG20592 ~ 20653-97 by the chemical industry standard or American standard ASME/ANSIB16.5-88 design, production.
5, installation and use
Throttling device especially the use of standard throttle device accuracy must be strictly by the following two aspects to guarantee the standardization of work.
One is based on the measured medium and technological parameters provided by the user, in strict accordance with the standard ISO5167 all the rules and procedures of throttle opening d20 calculation and throttling device structure design, processing, assembly and inspection, to ensure it meets the requirements;
And the other is throttling device installation and use as to be in strict accordance with the standard ISO5167 all the rules.
The following user, please be sure to follow and do.
Installation and main requirements for installation
The provisions of the throttle device upstream and downstream straight pipe length and requirements:
ISO5167 standard according to different type of throttling front is equipped with a choke, specifies the length of straight pipe upstream and downstream, as listed in table 2.
Table 2.Throttling a length of straight pipe upstream and downstream
The throttle choke upstream parts form and the shortest length of straight pipe
| Diameter ratio β≤ | Only a single 90 ° elbow and tee (fluid from a branch pipe flow) | On the same plane of two or more 90 elbow | In different plane of two or more 90 elbow | Reducer (within the length of the 1.5 D to 3 D from 2 D to D) | Reducer (within the length of the ID to 2 D from 0.5 D to D) | Ball valve fully open | Full bore ball valve fully open | Throttling a downstream the shortest length of straight pipe (including all choke in the table) |
0.20 | 10(6) | 14(7) | 34(17) | 5 | 16(8) | 18(9) | 12(6) | 4(2) |
0.25 | 10(6) | 14(7) | 34(17) | 5 | 16(8) | 18(9) | 12(6) | 4(2) |
0.30 | 10(6) | 16(8) | 34(17) | 5 | 16(8) | 18(9) | 12(6) | 5(2.5) |
0.35 | 10(6) | 16(8) | 36(18) | 5 | 16(8) | 18(9) | 12(6) | 5(2.5) |
0.40 | 12(6) | 18(9) | 36(18) | 5 | 16(8) | 20(10) | 12(6) | 6(3) |
0.45 | 14(7) | 18(9) | 38(19) | 5 | 17(9) | 20(10) | 12(6) | 6(3) |
0.50 | 14(7) | 20(10) | 40(20) | 6(5) | 18(9) | 22(11) | 12(6) | 6(3) |
0.55 | 14(7) | 22(11) | 44(22) | 8(5) | 0(10) | 24(12) | 14(7) | 7(3.5) |
0.60 | 18(9) | 26(13) | 48(24) | 9(5) | 22(11) | 26(13) | 14(7) | 7(3.5) |
0.65 | 22(11) | 32(16) | 54(27) | 11(6) | 25(13) | 28(14) | 16(8) | 7(3.5) |
0.70 | 28(14) | 36(18) | 62(31) | 14(7) | 30(15) | 28(14) | 20(10) | 7(3.5) |
0.75 | 36(18) | 42(21) | 70(35) | 22(11) | 38(19) | 36(18) | 24(12) | 8(4) |
0.80 | 46(23) | 50(25) | 80(40) | 30(15) | 54(27) | 44(22) | 30(15) | 8(4) |
Note: l, the table straight section length are expressed in multiples of the actual pipe nominal diameter DN.
2, don't take the value of the symbol for the value of "zero additional uncertainty".
3, with the value of the symbol for the value of "0.5% additional uncertainty".
When a user process section layout can not satisfy the provisions of the table 2, can be used with the () flow regulator rectifier. Otherwise the measurement accuracy will be reduced.
1, approval number: installation must be approved before a number, confirm account for installation of the throttle device after all parameters and installation of the same, just join operation can be performed.
2, direction: orifice throttling device on the handle or flange cylindrical surface with "+" and "-", "+" for the upstream, shall not be against.
3, take the position of the pressure mouth: take pressure varies from one by measurement of body, in figure 3 (a), (b), (c) are the horizontal line measure liquid, gas and steam pressure of bearing. Demand perspective. Alpha or 45 °.

When the fluid pipeline is vertical, the direction can be arbitrary choice.
4, pressure pipe guide: guide the material of pressure pipe should be according to the properties and parameters of the measured medium, the inner diameter is too small and the length is too long can make the signal serious lag, suggest three determine reference table.
Table 3 guide pipe inner diameter and length
Guide tube length in mm Tube length in mm By measurement of body | <16000 | 16000~45000 | 45000~90000 |
| Water, steam and dry gas | 7~9 | 10 | 13 |
| Wet gas | 13 | 13 | 13 |
| Low, medium viscosity of oil | 13 | 19 | 25 |
| Dirty liquid or gas | 25 | 25 | 38 |
5, and other optional accessories: installing throttling device in addition to the valve must be installed, for different measured medium, process parameters, the installation position of differential pressure transmitter, also can use such as condenser, gas collector, heavy will implement, isolated containers, such as how to configure them, please refer to the manual or consult our company (billed separately).
6, installation and alignment requirements: the throttle device connected to the pipe has a certain alignment requirements, users in the welding operation should be pay attention to or take the necessary measures.
7, sweep line: throttling device is installed should be sweep line, should first throttling parts will be removed at this time, to stay after the completion of the scan line again installed (note direction!) Binding and ensure the seal.
8, complete sets of installation: the throttle device installation, cut-off valve, pressure pipe, three valve group and differential pressure transmitter installation process conditions of different system installation, please see the appendix.
Use and the use of the main requirements
In order to ensure the use of throttling device for converting of differential pressure flowmeter users, please note:
1, the standard throttle device, the first to confirm the actual application conditions conform to the provisions of the standard, in order to estimate the actual measurement accuracy; And for the application of non-standard throttling device strict conditions, though not as good as the former, but also to have certain requirements.
2, after put into operation, should check whether the actual working parameters and design calculation of parameters are consistent, otherwise must make the necessary corrections or compensation.
3, the medium to be tested for gas or steam and (or) pressure and temperature have greater volatility, should carry on the temperature and pressure compensation (or).
4, when the temperature over 100 ℃, the measured medium differential pressure changes before entering apparatus must be equipped with the condenser; As the tested have strong corrosive medium, the former shall be equipped with insulated container.
5, be measured medium should be single phase, if the produce phase change before and after the throttle piece or solid particles or liquid accumulation, should try to prevent or eliminate.
6, in use process should be conducted on a regular basis for differential pressure transmitter calibration.
7, except must often check on the pressure tube, to prevent clogging, guide of outdoor pipe should be proper insulation, in case of solidification or freeze.
8, orifice inlet edge is easy to wear and tear and loss of accuracy, should be replaced periodically hole plate according to specific situation.
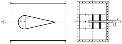
6, V cone flowmeter
V cone flowmeter is a coaxial installed in the measuring tube tip of the cone as the throttle a new differential pressure type flow measuring devices, it is a kind of based on venturi tube measurement principle, and collection of classical venturi tube, circular orifice and wear-resistant orifice advantages in the integration of new type of throttling device. Structure diagram as shown in figure 4Conditions of use:β:0.45~0.85;DN:15~1200;PN:0.25~20MPa;ReD: 1000~5000

The adoption of the structure of special V cone flowmeter, it has the following features:1, the straight pipe upstream or downstream demand shorter: length of straight pipe upstream of 0 ~ 3 d d, (3 d) on the downstream side of the valve installation requirements, downstream straight pipe length of 0 d - 1 d.2, accuracy: + / - 0.5%; Repeatability is 0. L %; Range than 15:13, dirt resistance, small pressure loss.4, with the adjusting of the flow and the fluid mixing action.5, easy installation, is the ideal of technical renovation of the flowmeter.6, free maintenance or maintenance workload is small.
7, balance flow meter
According to the space flight center (NASA - MSFC) on oxygen measurement of the space shuttle main engine and invented a new type of flowmeter, known as the balance Meter (BFM: Balanced Flow Meter). Compared with the traditional throttling device: balance flowmeter measurement accuracy by 5 ~ 10 times, flow noise reduction to 1/15, permanent pressure loss is about 1/3, 2 times the pressure recovery fast, straight pipe can shorten to 0.5 D. Balance meter without moving parts, easy installation and very easy to use, can save a lot of straight pipe, greatly reduced the energy consumption, fluid running is a kind of promising energy meter.The measuring accuracy of the flowmeter is 10 times of the standard aperture fluid flow meter, therefore, for the natural gas and oil refineries and other industrial department to save the cost a lot of money. space flight center project of the council a leading researchers Anthony kelley said: "this technology can reduce energy consumption when pumping liquid, reduce energy cost cost."
The working principle of
Balance flowmeter is a revolutionary differential pressure type flow meter, its working principle is the same as other differential pressure flowmeter, are based on the principle of energy conversion in the sealing pipe: in the case of ideal fluid in the pipeline flow is proportional to the square root of the differential pressure. Used to measure the differential value according to the Bernoulli equation to calculate the flow in the pipeline. Balance disc throttling of flow sensor is a porous rectifier, installed on the cross section of the pipeline, the size and distribution of each hole is based on the special formula and test data, and custom, called the function. When fluid through the function of the disc holes, the fluid will be balanced rectification, eddy current is minimized, form the approximate ideal fluid, through pressure device, can obtain the stability of the differential pressure signal, according to the Bernoulli equation, to calculate the volume flow to mass flow.




